15x7m hospital blood bank plan is given in this Autocad drawing file. Download the Autocad model
Description
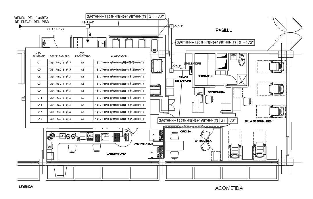
15x7m hospital blood bank plan is given in this Autocad drawing file. This is single story blood bank building. Nurse station, rest area, laboratory, centrifuges, secretary room, donor’s room, office, gent’s toilet, ladies toilet and reception is available. For more details download the Autocad drawing file. Thank you for downloading the Autocad drawing file and other CAD program files from our website.
Uploaded by:

