Back side transverse section view of 1.1x2.1m armored door plan is given in this Autocad drawing file. Download the Autocad model.
Description
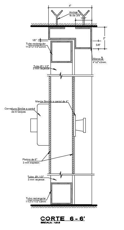
Back side transverse section view of 1.1x2.1m armored door plan is given in this Autocad drawing file. A section view of the door is given in this model. Measurement details are mentioned in this drawing model. For more details download the Autocad file. Thank you for downloading the Autocad file and other CAD program files from our website.
File Type:
DWG
File Size:
345 KB
Category::
Structure
Sub Category::
Section Plan CAD Blocks & DWG Drawing Models
type:
Free
Uploaded by:

