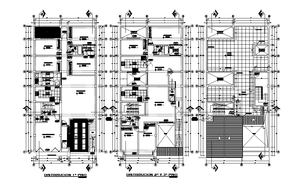
10x22m house plan is given in this Autocad drawing file.Download the Autocad model.
Description
10x22m house plan is given in this Autocad drawing file. This is G+2 house building. In this, the living area, kitchen, dining area, master bedroom with attached toilet, kid’s bedroom, two guest rooms, common toilet and garden is available. For more details download the Autocad file. Thank you for downloading the Autocad file and other CAD program files from our website.
Uploaded by:

