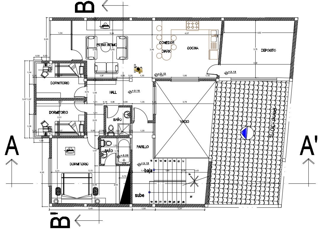
12x15m first floor house plan has been given in this Autocad drawing file. Download the Autocad model.
Description
12x15m first floor house plan has been given in this Autocad drawing file. This is G+2 house building. In this, master bedroom with attached bathroom, common bathroom, guest room, kid’s room, patio and family lounge area is available. For more details download the Autocad file and other CAD program files from our website. Thank you for downloading the Autocad drawing file and other CAD program files from our website.
Uploaded by:

