Plumbing plan of 12x15m house building has been given in this Autocad drawing file.Download now.
Description
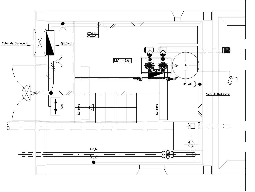
Plumbing plan of 12x15m house building has been given in this Autocad drawing file. In this, pipe layouts are given. This is G+2 house building. For more details download the Autocad file and other CAD program files from our website. Thank you for downloading the Autocad drawing file and other CAD program files from our website.
File Type:
DWG
File Size:
88 KB
Category::
Dwg Cad Blocks
Sub Category::
Autocad Plumbing Fixture Blocks
type:
Free
Uploaded by:

