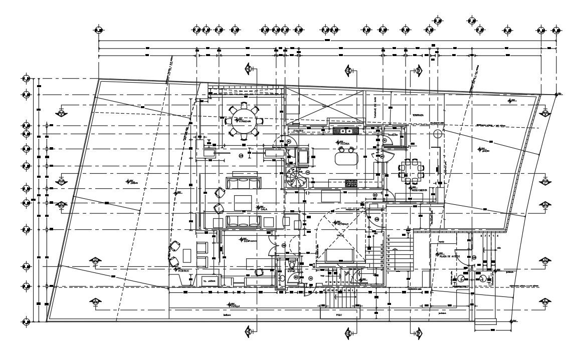
33x18m first floor house plan is given in this Autocad drawing file. Download now.
Description
33x18m first floor house plan is given in this Autocad drawing file. This is G+2 house building. Living hall, kitchen, store room, dining area, home theatre room, patio, common toilet and portico is available in the first floor. For more details download the Autocad drawing file. Thank you for downloading the Autocad drawing file and other CAD program files from our website.
Uploaded by:

