A section view of 26x14m office building is given in this Autocad drawing file. Download now.
Description
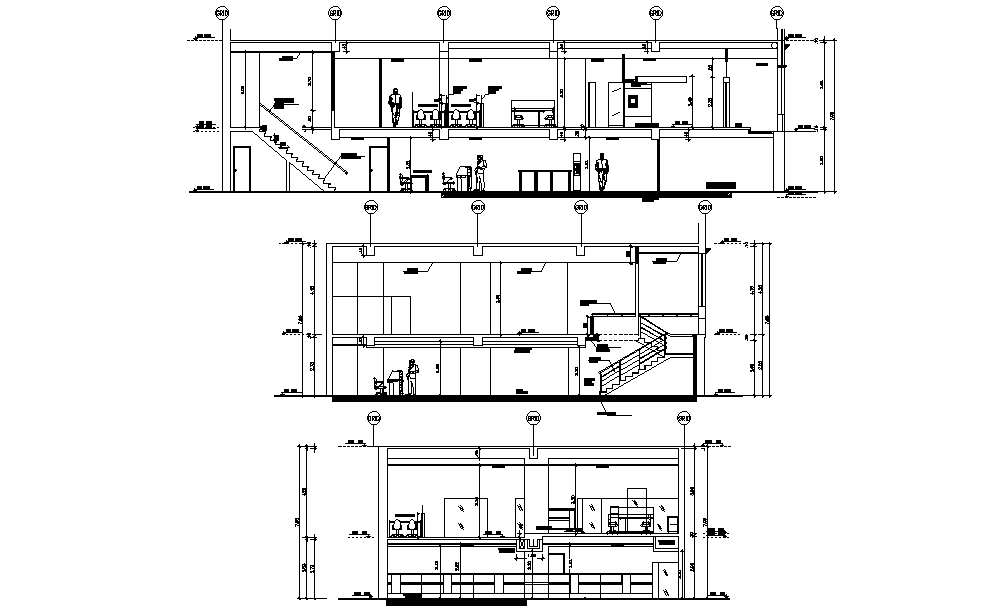
A section view of 26x14m office building is given in this Autocad drawing file. This is G+ 2 office building. Work area, gent’s toilet, ladies toilet, reception, supervisor room and other details are mentioned in this model. For more details download the Autocad drawing file. Thank you for downloading the Autocad drawing file and other CAD program files from our website.
File Type:
DWG
File Size:
688 KB
Category::
Structure
Sub Category::
Section Plan CAD Blocks & DWG Drawing Models
type:
Gold
Uploaded by:

