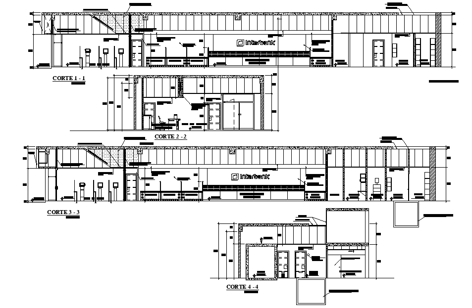
Interior cut section view of 30x10m office building is given in this Autocad drawing file. Download now.
Description
Interior cut section view of 30x10m office building is given in this Autocad drawing file. This is single story office building. In this work station, gent’s toilet, ladies toilet, kitchen, record room and other details are mentioned in this drawing model. For more details download the Autocad drawing file. Thank you for downloading the Autocad drawing file and other CAD program files from our website.
File Type:
DWG
File Size:
1.7 MB
Category::
Structure
Sub Category::
Section Plan CAD Blocks & DWG Drawing Models
type:
Free
Uploaded by:

