A section view of 10x30 office cum library building is given in this Autocad drawing file.Download now.
Description
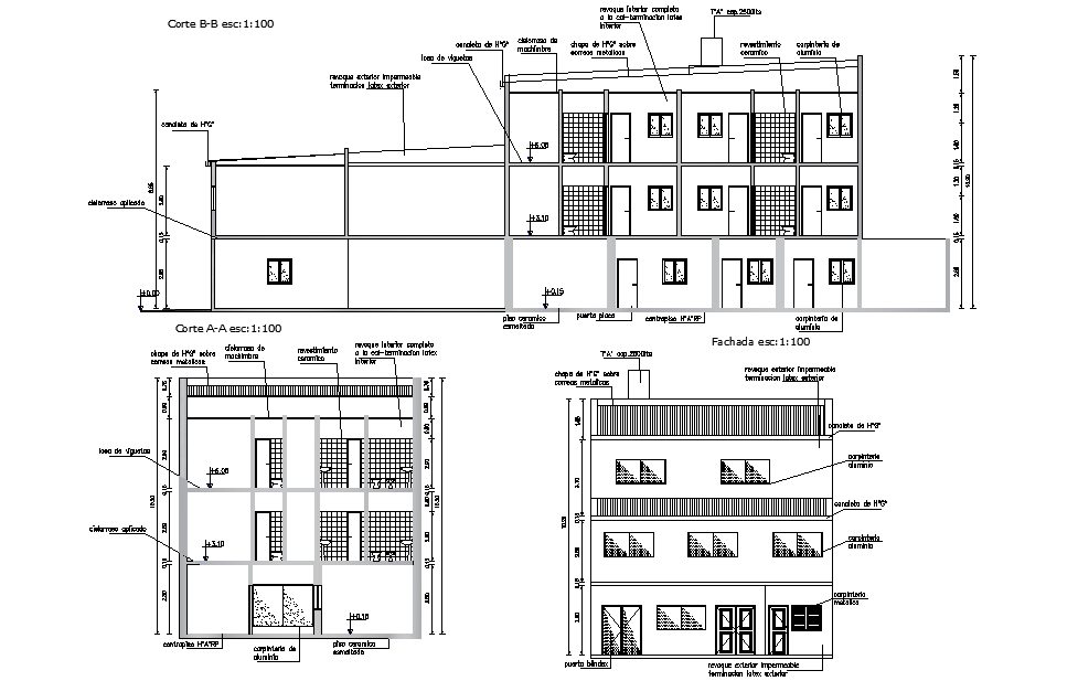
A section view of 10x30 office cum library building is given in this Autocad drawing file. This is G+ 2 office cum library building. Office cabins, gent’s toilet, ladies toilet, and other details are given in this model. For more details download the Autocad drawing file. Thank you for downloading the Autocad drawing file and other CAD program files from our website.
File Type:
DWG
File Size:
200 KB
Category::
Structure
Sub Category::
Section Plan CAD Blocks & DWG Drawing Models
type:
Free
Uploaded by:

