A section view of 1.5x1.5m lift is given in this Autocad drawing file. Download now.
Description
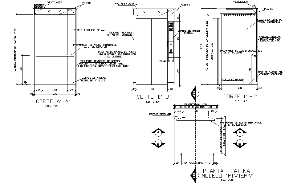
A section view of 1.5x1.5m lift is given in this Autocad drawing file. Height of the lift is 2.2m. Component details are specified in this drawing model. For more details download the Autocad drawing file. Thank you for downloading the Autocad drawing file and other CAD program files from our website.
File Type:
DWG
File Size:
345 KB
Category::
Structure
Sub Category::
Section Plan CAD Blocks & DWG Drawing Models
type:
Gold
Uploaded by:

