A section view of water pipe line is given for water treatment plant is given in this Autocad drawing file.Download now.
Description
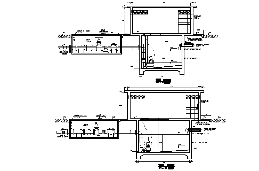
A section view of water pipe line is given for water treatment plant is given in this Autocad drawing file. In this transportation belt, sludge pumps, polyelectrolite pumps and other details are available. For more details download the Autocad drawing file. Thank you for downloading the Autocad drawing file and other CAD program files from our website.
File Type:
DWG
File Size:
2.5 MB
Category::
Structure
Sub Category::
Section Plan CAD Blocks & DWG Drawing Models
type:
Gold
Uploaded by:

