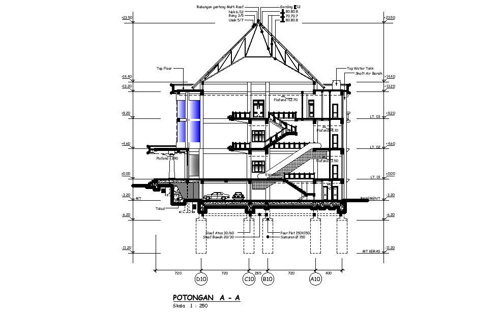
Left side section view of 64x18m office building is given in this Autocad drawing file. Download now.
Description
Left side section view of 64x18m office building is given in this Autocad drawing file. Ground floor, first and second floor plans are given in this file. Main hall, car parking, gent’s toilet, ladies toilet, office work area and entrance hall is available in this plan. This is G+ 3 office building. In this office plan each department is provided with the separate room. These rooms are consists of table, chair and attached toilet. For more details download the Autocad drawing file. Thank you for downloading the Autocad drawing file and other CAD program files from our website.
File Type:
DWG
File Size:
1.1 MB
Category::
Structure
Sub Category::
Section Plan CAD Blocks & DWG Drawing Models
type:
Gold
Uploaded by:

