616 Sqft G+1 Small house plan. Download the free 2D Autocad drawing file.
Description
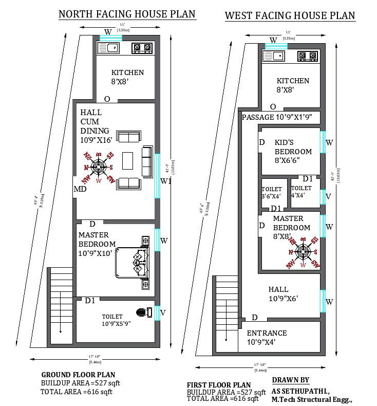
616 Sqft G+1 Small house plan is given in this cad drawing file. On the ground floor, a master bedroom with an attached toilet, kitchen, hall cum dining, and staircase are available. on the first-floor Kitchen, master bedroom with attached toilet, kid's bedroom with attached toilet, and the hall are available. The staircase is available outside of the house. Download the free 2D Autocad drawing file.

Uploaded by:
AS
SETHUPATHI

