A section view of 36’x22’ house plan of living hall is given in this AutoCAD model. Download now.
Description
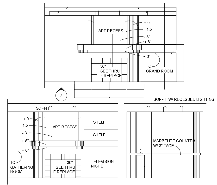
A section view of 36’x22’ house plan of living hall is given in this AutoCAD model. To gathering room, staircase area, and art access areas are mentioned in this model. For more details download the AutoCAD drawing file. Thank you for downloading the AutoCAD drawing file and other CAD program files from our website.
File Type:
DWG
File Size:
81 KB
Category::
Structure
Sub Category::
Section Plan CAD Blocks & DWG Drawing Models
type:
Gold
Uploaded by:

