12X7 Meter House Electrical Layout plan AutoCAD Drawing DWG File
Description
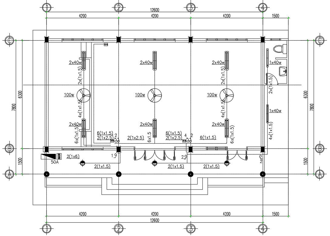
12X7 meter house electrical layout plan CAD drawing that shows all center line plan, column layout plan, door window marking, ceiling light and fan pointing detail in dwg file. Thank you for downloading the AutoCAD drawing file and other CAD program files from our website.
Uploaded by:

