Glass Window Elevation CAD Drawing Download DWG File
Description
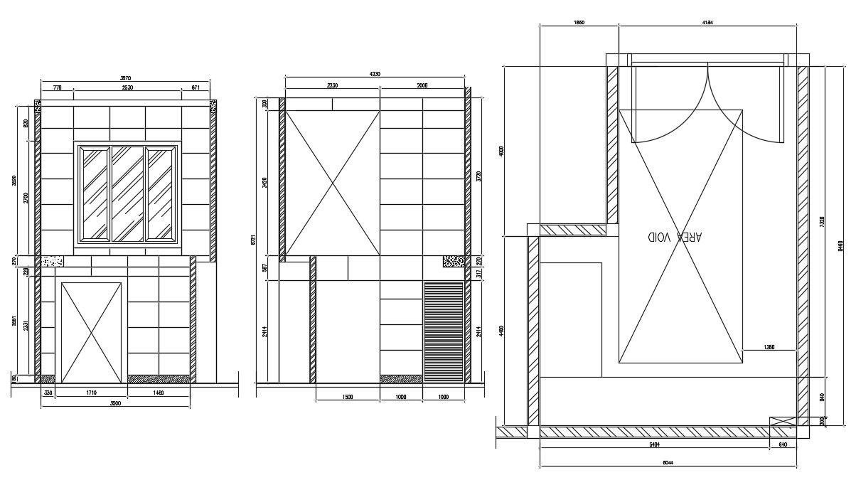
The AutoCAD drawing drawing given the detail of window elevation and frame with wall detail. its made by wooden frame and glass with all measurement dimension detail in dwg file. Thank you for downloading the AutoCAD drawing file and other CAD program files from our website.
Uploaded by:

