Front section view of 46x40m hotel cum multifunctional building is given in this Autocad drawing file.Download now.
Description
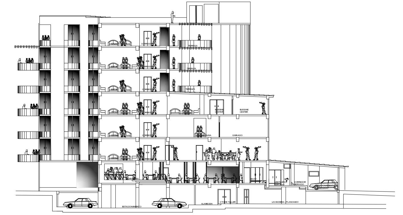
Front section view of 46x40m hotel cum multifunctional building is given in this Autocad drawing file. This is G+6 hotel building. Staying room, dining area, swimming pool, restaurant, lobby bar, vestidor, garden, auditorium, kitchen, service area, cafeteria, patio, corridor, administrative office, secretary room, gent’s toilet, ladies toilet, and other details are given in this model. For more details download the Autocad drawing file. Thank you for downloading the Autocad drawing file and other CAD program files from our cadbull website.
File Type:
DWG
File Size:
1.1 MB
Category::
Structure
Sub Category::
Section Plan CAD Blocks & DWG Drawing Models
type:
Gold
Uploaded by:

