A layout of 20x38m architecture house plan is given in this AutoCAD drawing model. Download now.
Description
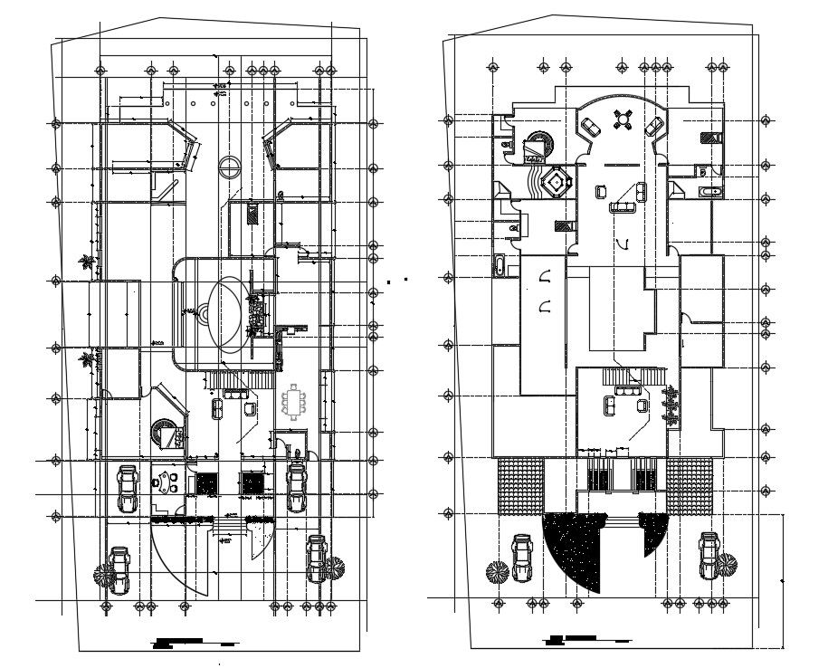
A layout of 20x38m architecture house plan is given in this AutoCAD drawing model. This is G+ 1 architectural house building. The car parking, living room, dining area, master bedroom with attached toilet & bath tub, kitchen, patio service, alberca, play area, multipurpose hall, gym, and guest rooms are available on the ground floor. Family lounge, living room, TV room, master bedroom with attached bathroom, guest room with attached bathroom, kid’s room with attached bathroom are available on the first floor. For more details download the AutoCAD drawing file. Thank you for downloading the AutoCAD drawing file and other CAD program files from our website.
Uploaded by:

