Site development of the hill house plan is available in this AutoCAD 2D DWG drawing file. Download now.
Description
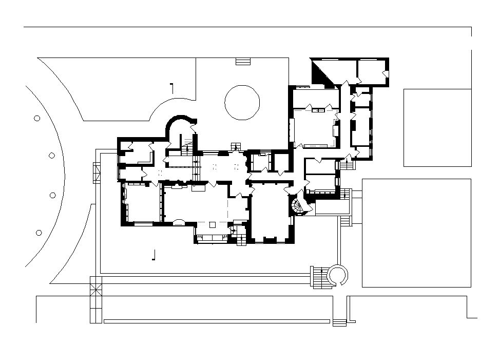
Site development of the hill house plan is available in this AutoCAD 2D DWG drawing file. This is G+ 1 hill house building. A kitchen, dining area, master bedroom with an attached toilet, guest room with an attached toilet, hall, and common bathroom are available on this house plan. For more details download the AutoCAD drawing file. Thank you for downloading the AutoCAD drawing file and other CAD program files from our website.
Uploaded by:

