30X50 Ft House Layout Plan Drawing Download DWG File
Description
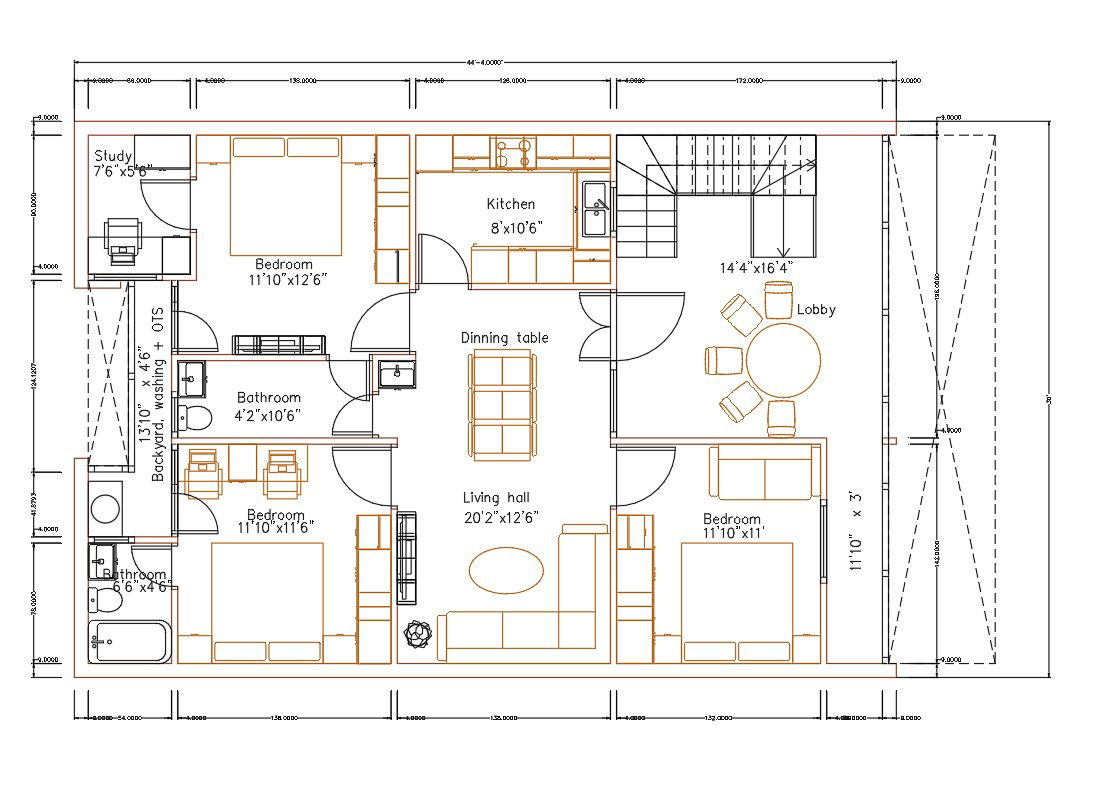
The residence house floor plan AutoCAD drawing that shows 30'X50' plot size which consist 3 bedrooms, study room, kitchen, dining area, living area, lobby, and staircase with all dimension detail in dwg file. download 1500 square feet house interior design with furniture layout plan in dwg file.
Uploaded by:

