Staircase Plan with Sectional Elevation DWG for Building Design
Description
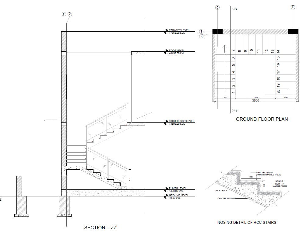
This DWG drawing showcases a staircase section and plan view designed for use in architectural and construction projects. It provides dimensioned details of treads, risers, and landings for precise execution. Engineers and architects can utilize this file for accurate elevation modeling, structure placement, and stair integration in complex building designs.
Uploaded by:

