North Facing Townhouse Plan Drawing DWG File
Description
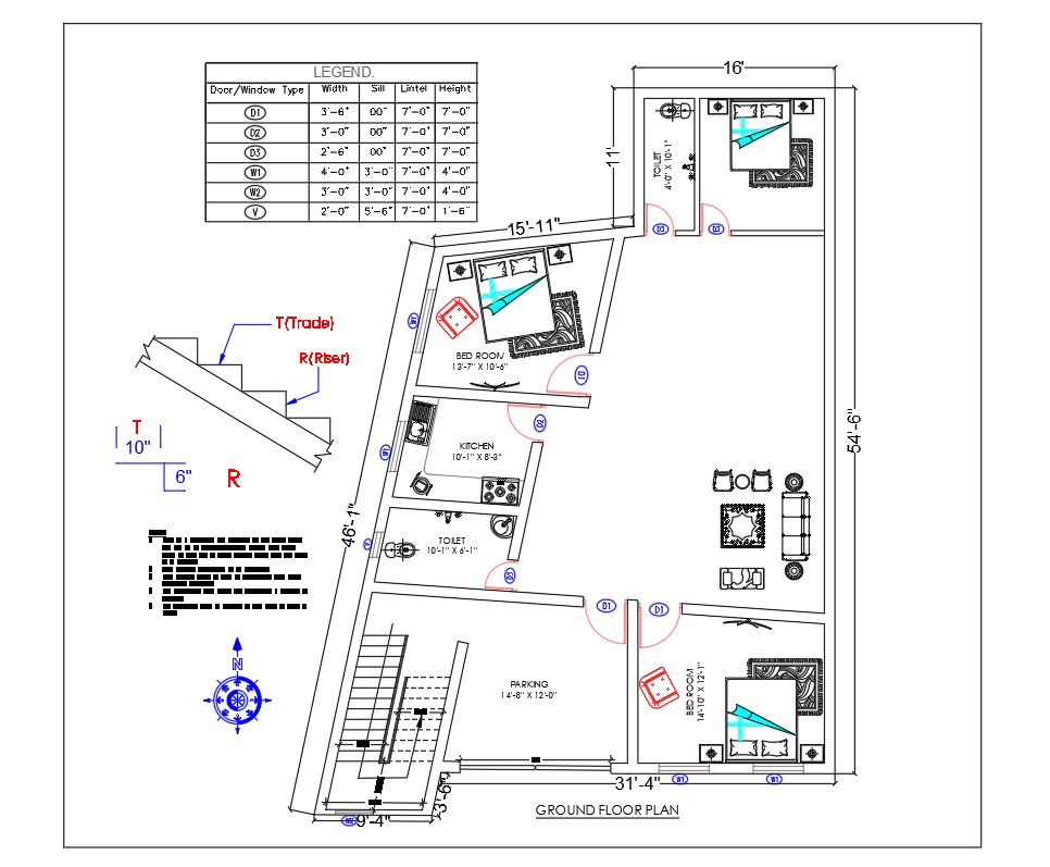
The north facing architecture townhouse plan CAD drawing includes 3 bedrooms, kitchen, drawing room, parking lot and staircase with all furniture design in dwg file. This drawing shall be read in conjunction with other pertinent drawings. The contractor must check all Dimensions & details of drawing All dimensions shall be verified on site prior to start of work. Thank you for downloading the AutoCAD drawing file and other CAD program files from our website.
Uploaded by:

