Glass Wall Systems Drawing Download DWG File
Description
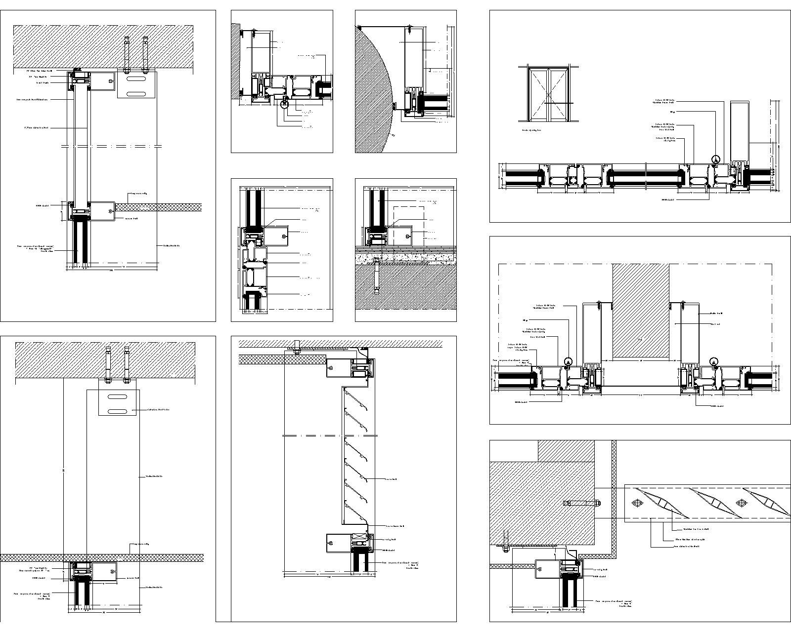
Glass block is a popular building material that is commonly used for partition work. Glass blocks can look attractive when placed strategically combining with artificial and natural lights. The glass blocks can be used in commercial as well as residential projects, as non-load bearing walls, windows, or partitions.
File Type:
Autocad
File Size:
406 KB
Category::
Details
Sub Category::
Architectural Detail Drawings
type:
Free
Uploaded by:

