24X14 Meter Architecture House Plan Drawing Download DWG File
Description
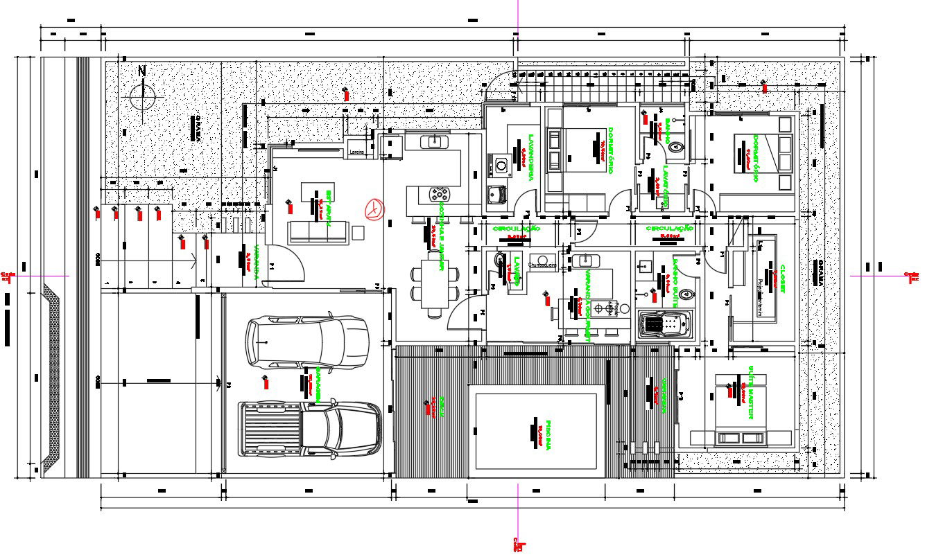
The architecture house ground floor plan AutoCAD shows 24X14 meter plot size which consist 3 bedrooms, kitchen, living room, dining area, swimming pool, car parking porch and garden. the is has interior furniture layout plan with all dimension detail in dwg file. Thank you so much for downloading the DWG file from our website.
Uploaded by:

