50x18 Meter House Site Plan DWG File
Description
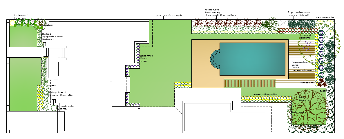
The house site plan CAD drawing shows a 50x18 meter plot size with detail, The house site plan includes swimming pool, garden area, landscape detail, and plot size in the dwg file. Landscape detail is available in this file. Thank you for downloading the AutoCAD drawing file and other CAD program files from our website. Visit CADBULL.COM Site.
Uploaded by:
K.H.J
Jani

