16x10 Meter 3 BHK House Plan DWG Layout
Description
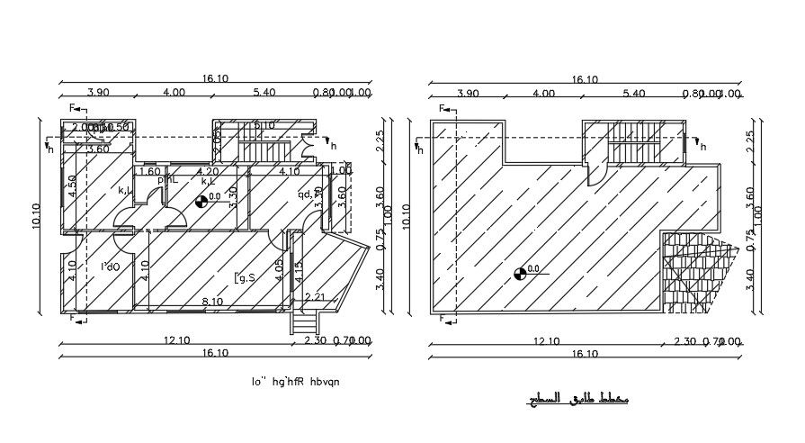
3 BHK House Plan layout shows a 16x10 meter size. 3 BHK House Plan Layout includes column placement, 3 bedrooms, living room, kitchen, dining area, and staircase is available. centerline plan is also available in this file.3 BHK House Plan dimensions are in a meter. Thank you for downloading the AutoCAD drawing file and other CAD program files from our website. Visit CADBULL.COM Site.
Uploaded by:
K.H.J
Jani

