19x16 Meter 3 BHK Second Floor Center Line Plan AutoCAD File
Description
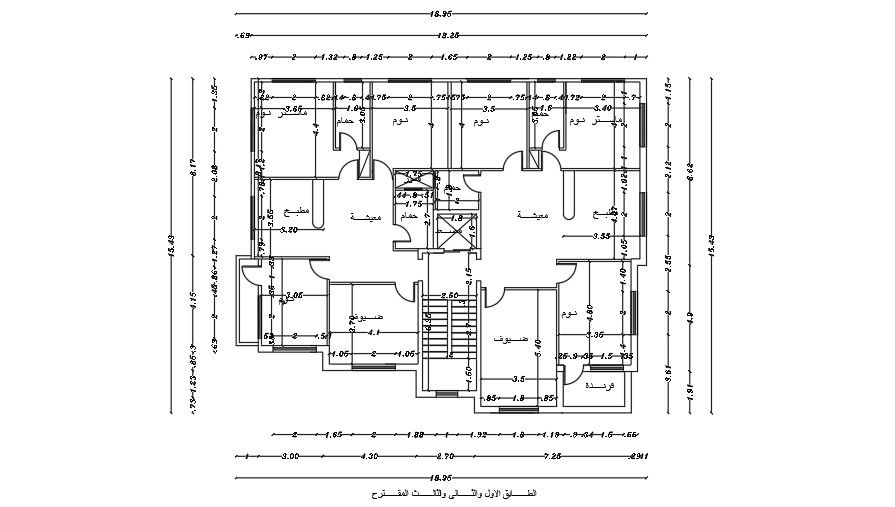
3 BHK Second Floor Center Line Plan layout shows a 19x16 meter size. 3 BHK Second Floor Center Line Plan Layout includes column placement, 3 bedrooms, living room, kitchen, dining area, and staircase is available. centerline plan is also available in this file. 3 BHK Second Floor Center Line Plan dimensions are in a meter. Thank you for downloading the AutoCAD drawing file and other CAD program files from our website. Visit CADBULL.COM Site.
Uploaded by:
K.H.J
Jani

