10x10 Meter House Plan AutoCAD File Download
Description
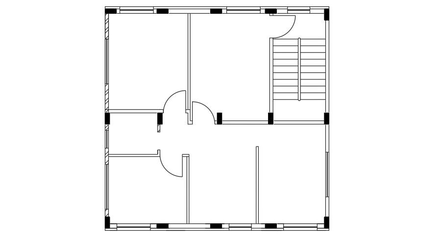
The House Plan layout shows 10x10 Meter In Size. House Plan Layout includes column placement, 2 bedrooms, living room, kitchen, dining area, and staircase is available. centerline plan is also available in this file. House Plan dimensions are in a meter. Thank you for downloading the AutoCAD drawing file and other CAD program files from our website. Visit CADBULL.COM Site.
Uploaded by:
K.H.J
Jani

