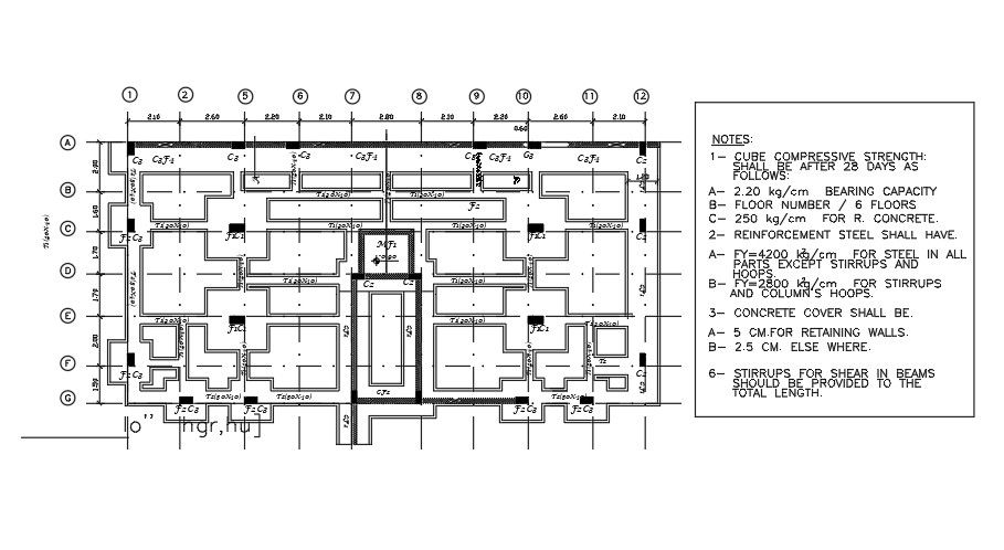
25x10m house plan of the structural elements drawing and loading details
Description
25x10m house plan of the structural elements drawing and loading details are given in this file. Column locations are mentioned in this drawing model. For more details download the AutoCAD file from our website.
File Type:
DWG
File Size:
14.6 MB
Category::
Structure
Sub Category::
Section Plan CAD Blocks & DWG Drawing Models
type:
Free
Uploaded by:

