A section view of the 15x13m house building download now
Description
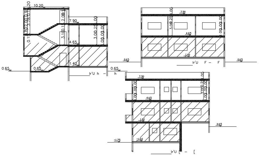
A section view of the 15x13m house building is given in this AutoCAD model. The living room, kitchen, master bedroom with the attached toilet, guest room, kid’s room, and common bathroom are available. For more details download the AutoCAD file.
File Type:
DWG
File Size:
188 KB
Category::
Structure
Sub Category::
Section Plan CAD Blocks & DWG Drawing Models
type:
Free
Uploaded by:

