A section view of the 13x9m house building drawing

A section view of the 13x9m house building drawing
Profile

Uploaded by:

Meera

Description
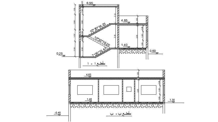
A section view of the 13x9m house building drawing is given in this AutoCAD model. The total height of the building is 6.96m including water tank. This is a single story building. This is a 2bhk house plan. The living room, kitchen, family lounge area, master bedroom, kid’s room, and common bathroom are available. For more details download the AutoCAD file.
Profile

Uploaded by:

Meera

find Latest

Related Files

WhatsApp Chat