A section view of the 9x13m house building CAD drawing
Description
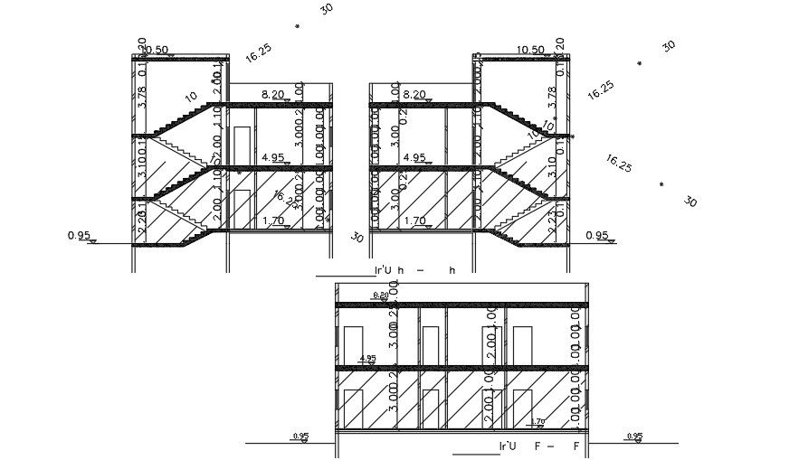
A section view of the 9x13m house building CAD drawing is given in this file. The total height of the building is 10.5m. These houses are consists of the living room, kitchen, dining, master bedroom with the attached toilet, kid’s room, and common bathroom. For more details download the AutoCAD drawing file from our website.
File Type:
DWG
File Size:
358 KB
Category::
Structure
Sub Category::
Section Plan CAD Blocks & DWG Drawing Models
type:
Free
Uploaded by:

