A section view of the house 13x16m building drawing
Description
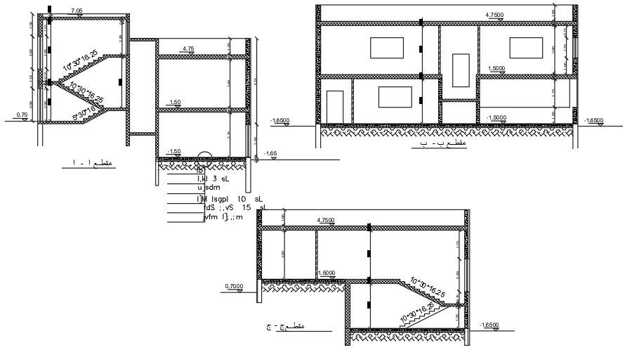
A section view of the house 13x16m building drawing is given in this file. The total height of the building is 7.05m. The living room, kitchen, master bedroom with the attached bathroom, guest room, family lounge area, and common bathroom are available. For more details download the AutoCAD drawing file.
File Type:
DWG
File Size:
462 KB
Category::
Structure
Sub Category::
Section Plan CAD Blocks & DWG Drawing Models
type:
Free
Uploaded by:

