13x13m residential house plan drawing
Description
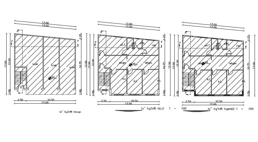
13x13m residential house plan drawing is given in this AutoCAD model. On the plan, the ground floor, first floor and second floors are given. The living room, kitchen, master bedroom, guest room, kid’s room, dining area, and two common bathrooms are available. For more details download the AutoCAD drawing file.
Uploaded by:

