30x26m residential site layout drawing is given
Description
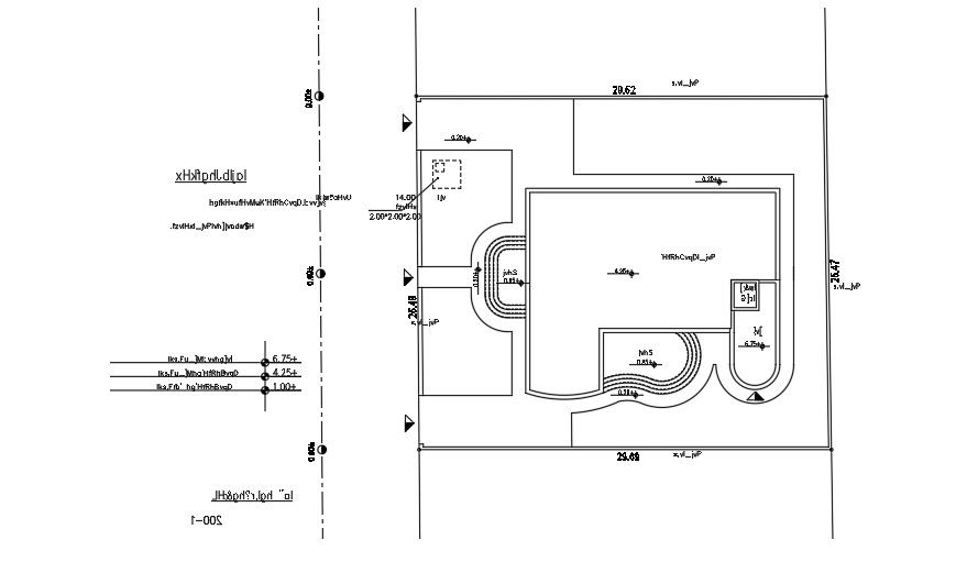
30x26m residential site layout drawing is given in this AutoCAD file. The length and breadth of the house plan are 20m and 20m respectively. The living room, master bedroom with the attached toilet and dressing room, kid’s room with the attached toilet, guest room, kitchen, dining area, and common bathroom are available. For more details download the AutoCAD drawing file.
Uploaded by:

