23x12m first floor house plan AutoCAD drawing
Description
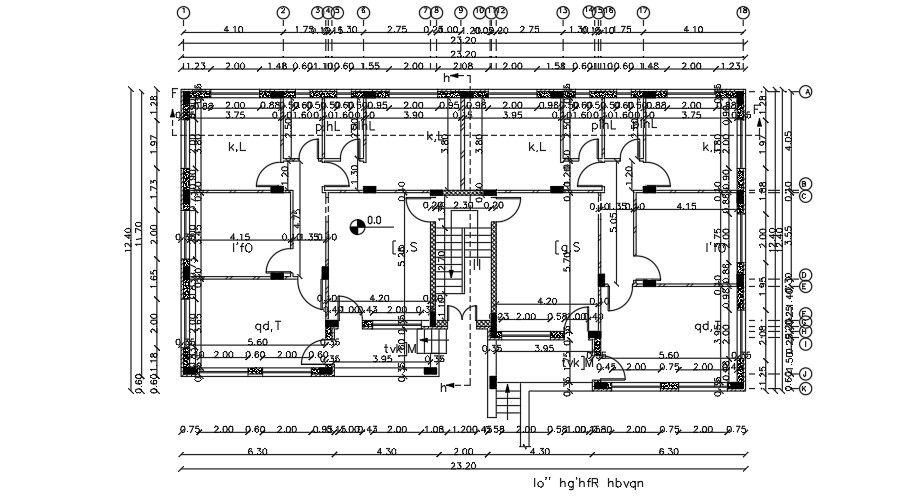
23x12m first floor house plan AutoCAD drawing is given in this file. Two houses are available on this first floor. The living room, kitchen, dining area, master bedroom with the attached toilet, kid’s room, and common bathroom are available. For more details download the AutoCAD drawing file.
Uploaded by:

