17x12m first floor house plan AutoCAD drawing

17x12m first floor house plan AutoCAD drawing
Profile

Uploaded by:

Meera

Description
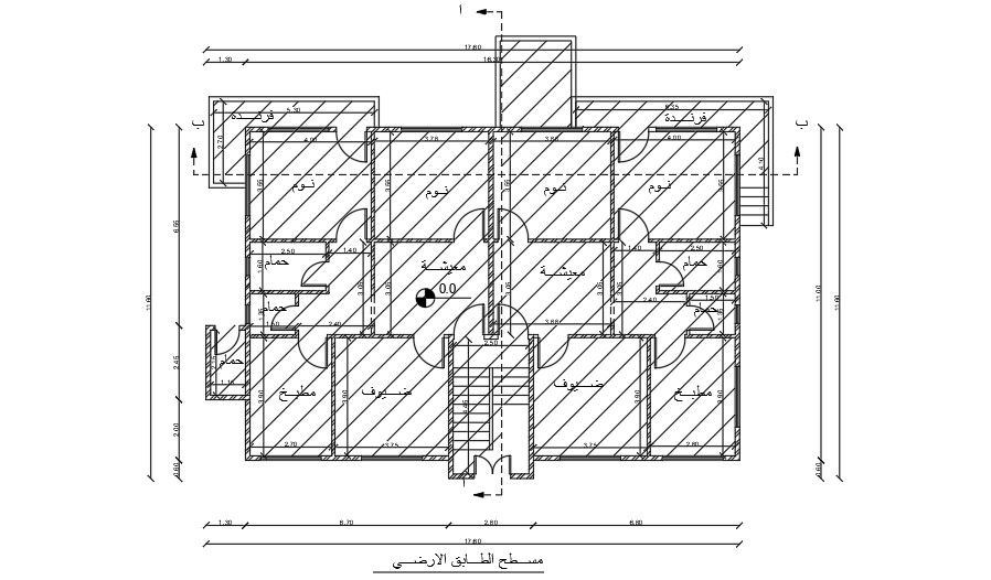
17x12m first floor house plan AutoCAD drawing is given in this file. This is G+ 1 house building. The living room, kitchen, guest room, master bedroom, kid’s room, and two common bathrooms are available. For more details download the AutoCAD drawing file.
Profile

Uploaded by:

Meera

find Latest

Related Files

WhatsApp Chat