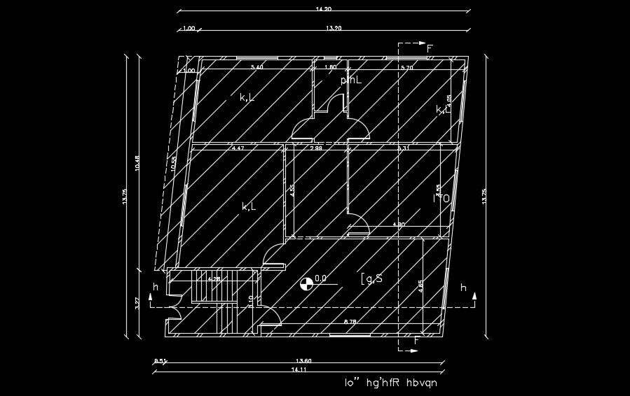
15x14m house plan is given in this AutoCAD drawing model

15x14m house plan is given in this AutoCAD drawing model
Profile

Uploaded by:

Meera

Description
15x14m house plan is given in this AutoCAD drawing model. The living room, kitchen, master bedroom, guest room, kid’s room, and common bathroom are available. For more details download the AutoCAD file for free from our website.
Profile

Uploaded by:

Meera

find Latest

Related Files

WhatsApp Chat