A section view of the 12x14m house building AutoCAD drawing
Description
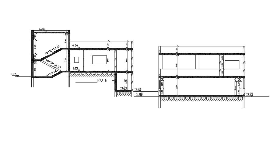
A section view of the 12x14m house building AutoCAD drawing is given in this file. The total height of the building is 6.6m. The living room, kitchen, master bedroom with the attached bathroom, kid’s room, guest room, and two common bathrooms are available. For more details download the AutoCAD drawing file from our website.
File Type:
DWG
File Size:
862 KB
Category::
Structure
Sub Category::
Section Plan CAD Blocks & DWG Drawing Models
type:
Gold
Uploaded by:

