30x18m house plan AutoCAD drawing

30x18m house plan AutoCAD drawing
Profile

Uploaded by:

Meera

Description
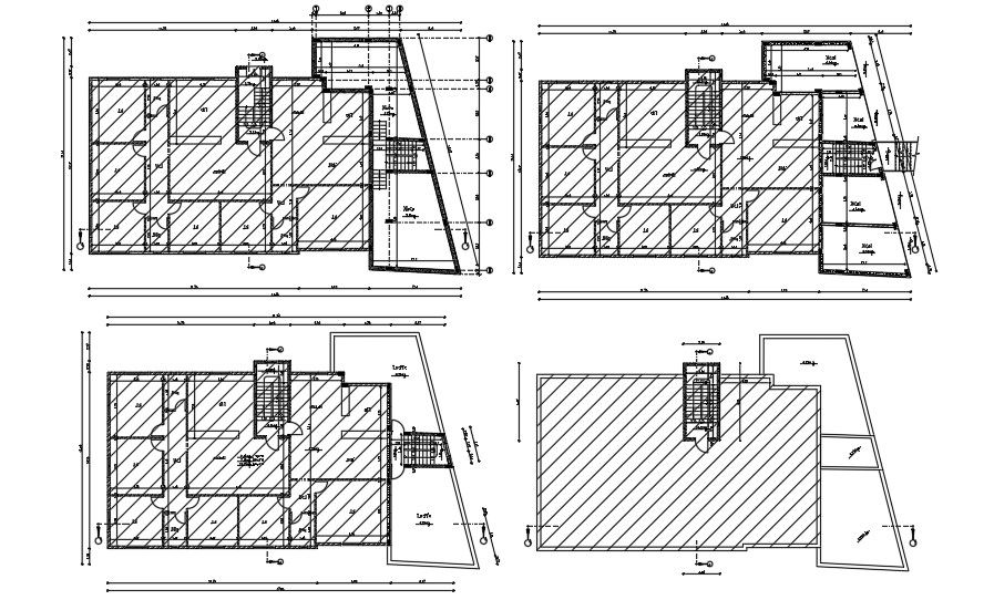
30x18m house plan AutoCAD drawing is given in this file. This is G+ 4 residential building. On each floor, two houses are available. The living room, kitchen, master bedroom, guest room, kid’s room, and common bathroom are available. For more details download the AutoCAD drawing file from our website.
Profile

Uploaded by:

Meera

find Latest

Related Files

WhatsApp Chat