Section Of 8x17 Meter House DWG File
Description
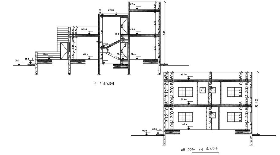
Sections Of the House Building AutoCAD files are shown in this drawing file. This is a House -building section drawing. The sections of the House building include window and door sizes and staircase sections with all dimensions. Beam depth is 0.15 Meter. levels are shown in this file. Section of sections Of the House Building AutoCAD files is shown in this drawing file. This is a House -building section drawing. The sections of the House building include window and door sizes and staircase sections with all dimensions. building plan shows detail of ground section detail. Thank you for downloading the AutoCAD drawing file and other CAD program files from our website. Visit CADBULL.COM Site.
Uploaded by:
K.H.J
Jani

