22x8m house plan AutoCAD drawing
Description
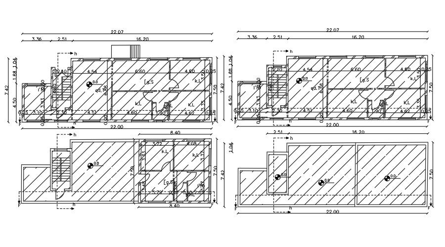
22x8m house plan AutoCAD drawing is given in this file. The living room, kitchen, master bedroom, guest room, kid’s room, and common bathroom are available. On the ground floor, 1bhk house is available. 3bhk houses are available on the first and second floor. For more details download the AutoCAD drawing file from our website.
Uploaded by:

