30x35m residential site layout
Description
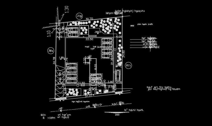
30x35m site layout is given in this AutoCAD model. This is a ground floor plan. The length and breadth of the house plan is 22m and 22m are respectively. Car parking, sit out area, and garden are available. For more details download the AutoCAD file for free from our website.
Uploaded by:

