A section view of the 22x22m house building
Description
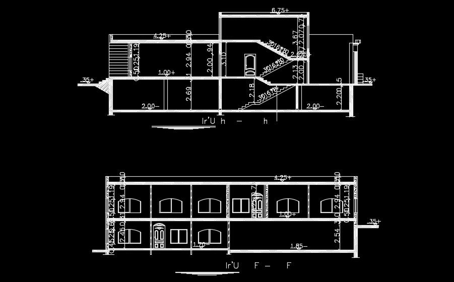
A section view of the 22x22m house building is given in this AutoCAD drawing model. The living room, kitchen, master bedroom with attached toilet, guest room, kid’s room, and storeroom are available. For more details download the AutoCAD file for free from our website.
File Type:
DWG
File Size:
5.4 MB
Category::
Structure
Sub Category::
Section Plan CAD Blocks & DWG Drawing Models
type:
Free
Uploaded by:

