24x10 Meter House Plan AutoCAD Layout File
Description
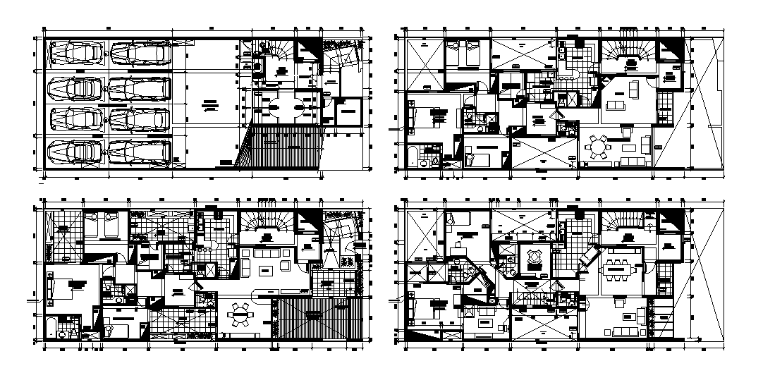
The residence house plan CAD drawing shows a 24x10 Meter plot size with all furniture detail, The 3 BHK modern house plan includes 3 bedrooms, dining area, living room, kitchen, sitting area, and parking in dwg file. roof detail is shown in this file. Elevations and sections are also shown in the 3 BHK House Plan. Thank you for downloading the AutoCAD drawing file and other CAD program files from our website. Visit CADBULL.COM Site.
Uploaded by:
K.H.J
Jani

