42x40 Meter House Plan And Elevation AutoCAD Layout File

42x40 Meter House Plan And Elevation  AutoCAD Layout File
Profile

Uploaded by:

K.H.J

Jani

Description
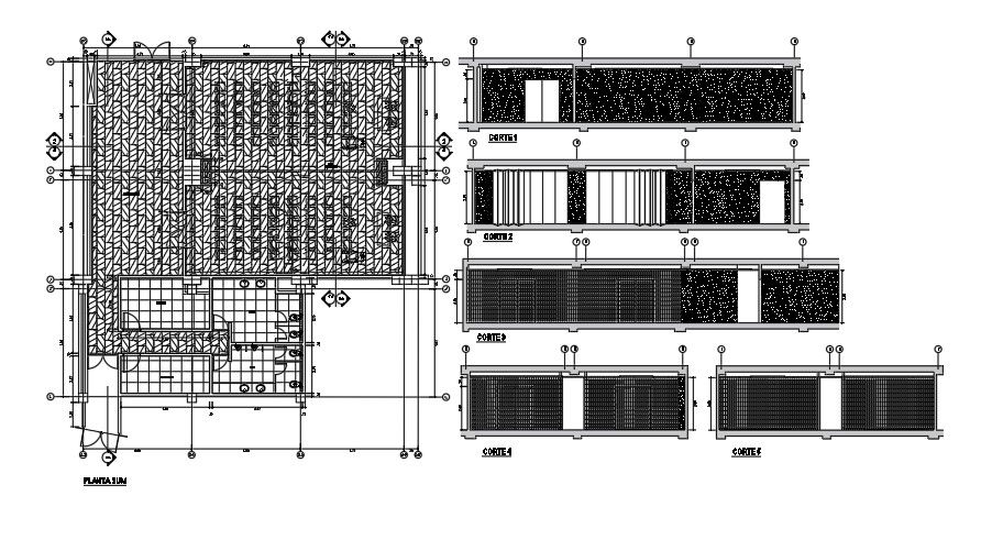
The residence house plan CAD drawing shows a 42x40 meter plot size with all furniture detail, The modern house plan includes bedrooms, dining area, living room, kitchen, sitting area, and parking in DWG file. roof detail is shown in this file. Elevations and sections are also shown in the House Plan. Thank you for downloading the AutoCAD drawing file and other CAD program files from our website. Visit CADBULL.COM Site.
Profile

Uploaded by:

K.H.J

Jani

find Latest

Related Files

WhatsApp Chat