10x20 Meter 4 BHK AutoCAD Plan Layout File
Description
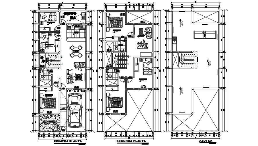
The residence house 4 BHK house plan CAD drawing shows 10x20 meter plot size with all furniture detail, The 4 BHK modern house plan includes 4 bedrooms, dining area, living room, kitchen, sitting area, and parking in DWG file. roof detail is shown in this file. Elevations and sections are also shown in the 4 BHK House Plan. Thank you for downloading the AutoCAD drawing file and other CAD program files from our website. Visit CADBULL.COM Site.
Uploaded by:
K.H.J
Jani

