10x10m ground floor house plan AutoCAD drawing

10x10m ground floor house plan AutoCAD drawing
Profile

Uploaded by:

Meera

Description
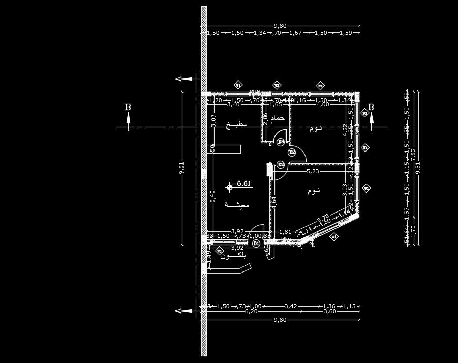
10x10m ground floor house plan AutoCAD drawing is given in this file. This is G+ 1 house building. The living room, kitchen, master bedroom, two kid’s room, and two common bathrooms are available. For more details download the AutoCAD drawing file from our website.
Profile

Uploaded by:

Meera

find Latest

Related Files

WhatsApp Chat