Master Bedroom Interior AutoCAD Layout
Description
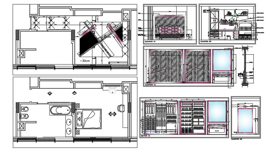
The Master bedroom of the Apartment plan is given in this AutoCAD drawing file. The length and breadth of the dressing room are 18’ and 11’ respectively. A Bedroom plan is given in this model. Sectional elevations are also available in this file. For more details download the AutoCAD drawing file. Thank you for downloading the AutoCAD drawing file and other CAD program files from our website.
Uploaded by:
K.H.J
Jani

