12x14m architecture house plan drawing is given in this AutoCAD file
Description
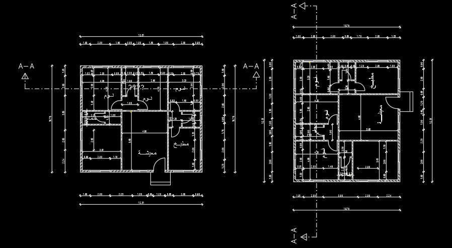
12x14m architecture house plan drawing is given in this AutoCAD file. The living room, kitchen, master bedroom, two kid’s room, guest room, and two common bathrooms are available. For more details download the AutoCAD drawing file from our cadbull website.
Uploaded by:

